













Clădire ideală pentru afacerea ta sau o investiție sigură în interiorul orașului. Comision 0%
Spațiu cu acces facil în interiorul orașului pe Str. Pestalozzi, nr. 22, potrivit pentru depozitare, birouri, servicii sau chiar pentru extinderea unei activități existente, îți propun o proprietate care merită toată atenția.
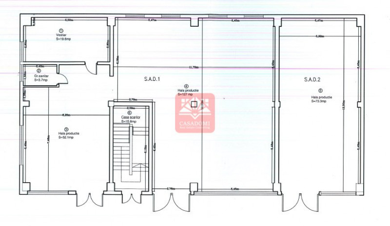
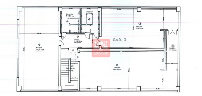
Cladirea are o suprafață utilă totală de 547 mp și beneficiază de un teren în proprietate de 689 mp. Construcția este realizată pe o structură solidă din stâlpi și cadre de beton armat, oferind stabilitate și flexibilitate în compartimentare.
Imobilul este împărțit în 3 unități funcționale (SAD-uri), fiecare cu carte funciară proprie, cu regim de înălțime P+1 și o compartimentare eficientă în 7 încăperi, plus dependințe – casa scării, grupuri sanitare, vestiare și spații tehnice.
În prezent, întregul imobil este închiriat către prestatori de servicii, generând venituri constante. Aceasta îl face potrivit atât pentru un investitor care urmărește un flux de numerar imediat, cât și pentru un antreprenor care își dorește să utilizeze spațiul pentru propriul business.
Prețul de vânzare este + TVA, iar proprietatea se poate achiziționa inclusiv împreună cu societatea care o deține, oferind astfel flexibilitate în structurarea tranzacției.
Dacă ești în căutarea unei proprietăți solide, versatile și profitabile, te invit la o vizionare pentru a analiza împreună toate detaliile și a identifica cea mai potrivită soluție pentru planurile tale de dezvoltare.
Proprietate aflata in reprezentare exclusivă in portofoliul Echipei Casadomi - Dorin Branescu