














Cauți o hală potrivită pentru afacerea ta?
Dacă ai nevoie de un spatiu de depozitare in interiorul orasului si o zona de birouri, doresti sa deschizi un business in servicii, sa faci o investitie buna sau sa creezi un viitor punct de lucru pentru actualul tău business, te invităm la o vizionare.
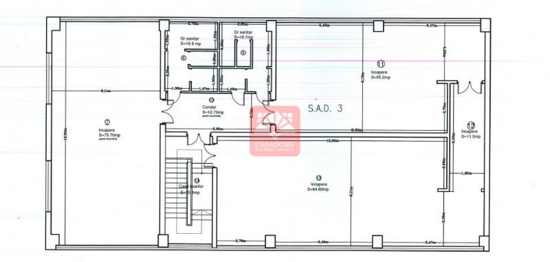
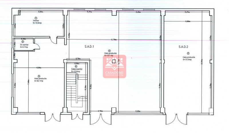
Iți propunem o hală cu o suprafață utilă desfasurata de 547 mp si teren in proprietate 689mp, aceasta fiind construită pe o structură de rezistență cu stâlpi si cadre din beton armat. Spatiul este structurat in 3 SAD-uri cu CF-uri diferite, P+1, structurate in 7 incaperi+dependinte(casa scarii, grupuri sanitare, vestiare, etc.).
In prezent, Toate incaperile Halei sunt inchiriate către diversi prestatori de servicii si se poate prelua impreuna cu acestia.
La pretul afisat se adaugă TVA. Se poate achizitiona impreună cu firma.
Te invităm cu drag la o vizionare pentru a te ajuta să iei decizia potrivită.