

















Apartament cu potențial în zona Fabric – Timișoara, situat la etajul 4 din 4 al unui bloc cu acoperiș, acest apartament reprezintă o oportunitate excelentă pentru cei care își doresc să-și creeze locuința după propriul gust. Dispune de centrală proprie și geamuri termopan, elemente care adaugă valoare și confort. Deși necesită renovare, spațiul oferă libertatea de a fi transformat într-un cămin modern și personalizat.
Localizare:
- Adresa: loc. Timisoara, str. Andrei Saguna, A12
- Proximitate: Casa Județeană de Pensii Timiș, Râul Bega, Profi, Mijloace de transport in comun.
Detalii generale:
- An construcție: 1981
- Regim de înălțime: P+4
- Tip construcție: Beton
- Toate utilitățile: Apă, Curent, Gaz, Canalizare
- Încălzire: Centrală proprie / Incalzire prin calorifere
- Izolație: Nu
- Lift: Nu
- Loc de parcare : Nu
Caracteristici principale:
- Număr de camere: 1 Dormitor, 1 Living, 1 Bucatarie , 1 Balcon
- Număr băi: 1 baie
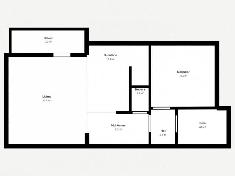
- Suprafață utilă: 56 mp + 4 mp Balcon
- Compartimentare: SemiDecomandat
- Etaj: Etaj 4 din 4
- Balcon : Da
- Tâmplărie: PVC cu geam termopan
- Pardoseală: Parchet / Gresie
- Ușă metalică la intrare
- Acces securizat: Interfon
Beneficii:
- Acces rapid la mijloace de transport în comun
- În apropiere de magazine, farmacii, școli și grădinițe
- Ideal atât pentru cupluri cat si pentru familii cu copii
Detalii achiziție:
- Preț: 85.000 euro
- Se oferă consultanță financiar-bancară gratuită în vederea contractării oricărui tip de credit